台東区 賃貸店舗・事務所

台東区 賃貸店舗・事務所

お問い合わせ番号:f11166-136327
賃貸店舗・事務所
台東区日本堤1
日比谷線 南千住駅 ( 徒歩 12分 )
賃料 15.40万円(税込)
(坪単価:1.54万円)
観光客にも人気の南千住
管理費
共益費
-
-
保証金
解約引
権利金
4ヶ月
1ヶ月
-
敷金
礼金
更新料
-
15.4万円
1ヶ月(税込)
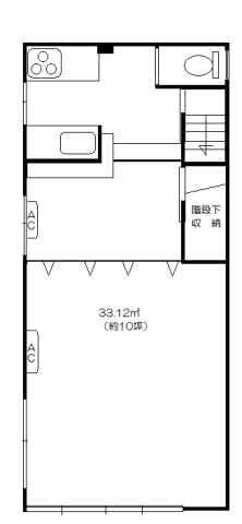
建物/専有
面積
33.12m2
(10.01坪)
土地面積 - 築年月 1993年3月
(平成5年3月)
駐車場 - 所在階 1階 地上階数
地下階数
2階
-
構造 木造
現況 空き
入居/引渡 相談 
取引 仲介
物件登録日 2025年2月14日
情報更新日 2025年2月20日

台東区 賃貸店舗・事務所 周辺地図

台東区 賃貸店舗・事務所 のことならお気軽にご相談ください。
テナントショップ蔵前(ALDO株式会社)
TEL:03-5846-9922
営業時間:10:00~19:00
定休日 :年中無休
メールでのお問い合わせ

お電話の場合は「テナントショップを見ました。物件番号は < f11166-136327 > です」と伝えていただくとスムーズにお応えできます。

  • 借りる
  • テナント・貸店舗を探す
  • オフィス・事務所を探す
  • 倉庫・工場を探す
  • 貸土地・借地を探す
  • 居抜き物件
  • 地域で探す
  • 買う
  • 売買物件を探す
  • 依頼する
  • 新着物件!未公開物件!地元に詳しい!
  • 物件リクエスト
検索する
スペース区切りの複合語句検索はできません

  • スマホで物件検索
  • 物件管理
  • 会社概要・アクセス
  • ALDO株式会社