江東区 賃貸店舗・事務所(1R)

江東区 賃貸店舗・事務所

お問い合わせ番号:f11166-138668
賃貸店舗・事務所
江東区門前仲町2-4-12
門前仲町駅 ( 徒歩 2分 )
賃料 55.00万円(税別)
(坪単価:2.99万円)
管理費 -
保証金
解約引
-
-
敷金
礼金
12円
1円
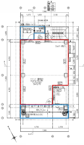
建物/専有
面積
60.87m2
(18.41坪)
土地面積 - 築年月 2025年5月
(令和7年5月)
駐車場 - 所在階 5階 地上階数
地下階数
10階
1階
構造 鉄骨造
現況 建築中
入居/引渡 相談 
取引 仲介
物件登録日 2025年3月28日
情報更新日 2025年3月28日
江東区 賃貸店舗・事務所 のことならお気軽にご相談ください。
テナントショップ蔵前(ALDO株式会社)
TEL:03-5846-9922
営業時間:10:00~19:00
定休日 :年中無休
メールでのお問い合わせ

お電話の場合は「テナントショップを見ました。物件番号は < f11166-138668 > です」と伝えていただくとスムーズにお応えできます。

  • 借りる
  • テナント・貸店舗を探す
  • オフィス・事務所を探す
  • 倉庫・工場を探す
  • 貸土地・借地を探す
  • 居抜き物件
  • 地域で探す
  • 買う
  • 売買物件を探す
  • 依頼する
  • 新着物件!未公開物件!地元に詳しい!
  • 物件リクエスト
検索する
スペース区切りの複合語句検索はできません

  • スマホで物件検索
  • 物件管理
  • 会社概要・アクセス
  • ALDO株式会社